服务热线:13880667850


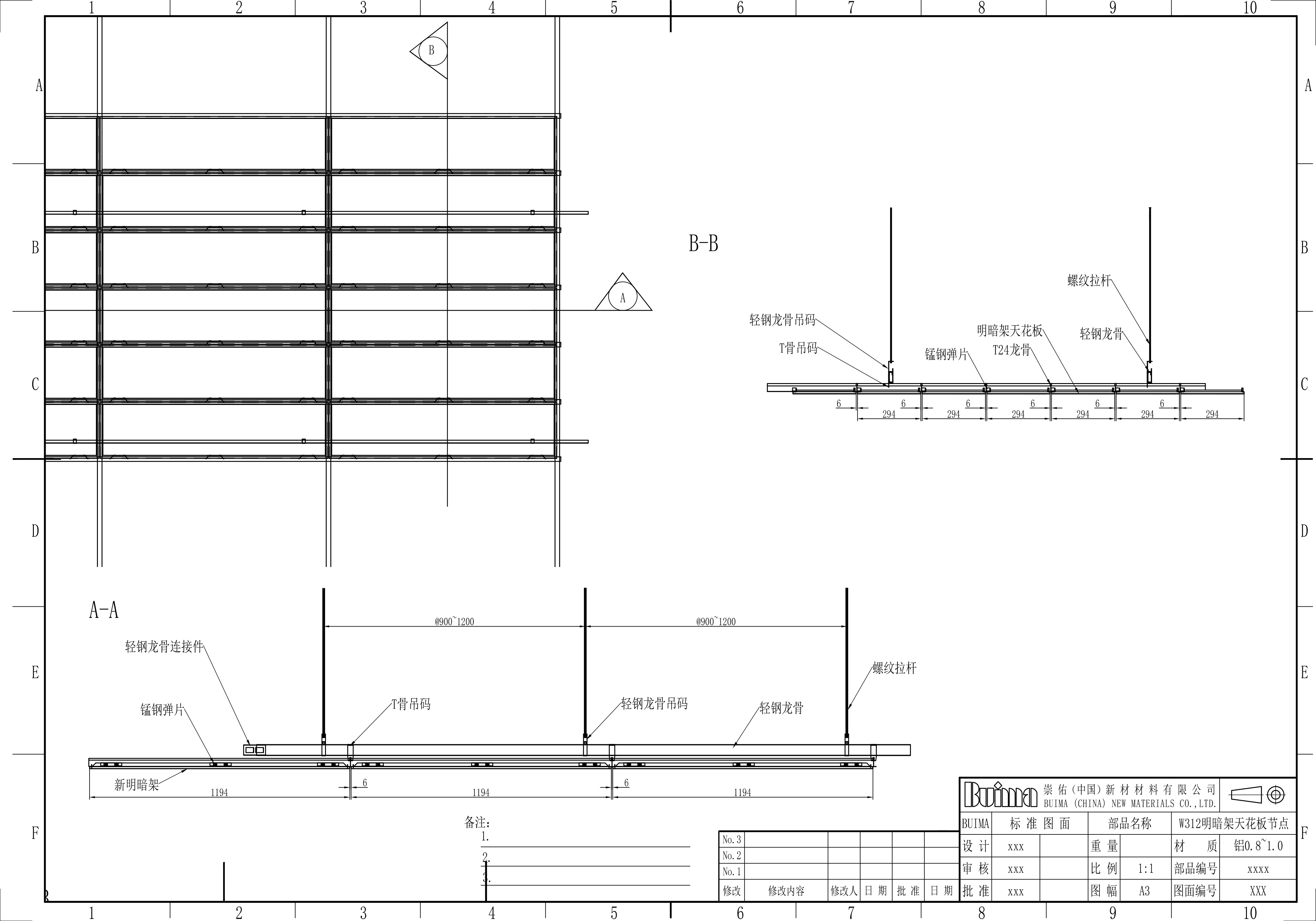
崇佑(中国)的这款明暗架天花系统的板面可采用钢制天花板也可采用铝制天花板,可以根据设计师对空间不同的述求进行选择。如需防火时效,则采用钢制天花板;如需轻便且对防火要求不高,则采用铝制天花板。这个明暗架系统天花可以做组合式天花吊顶系统的结构,可以通过300*300(mm)、300*1200(mm)、400*1200(mm)、600*1200(mm)、1200*1200(mm)这些尺寸,来满足设计师对空间不同功能区的划分。再者,这款天花系统,采用了明架系统的优势,就是龙骨系统本身是抗震防火龙骨,可以广泛应用于地震带项目或者对防火时效有要求的场所;另外又结合了暗架系统的优势,便利拆卸安装且自带防风结构,这样就不会存在因为空间气流问题而突然被掀翻的天花板砸到人的问题。














